Barrierefreiheitseinstellungen geht auch mit TAB Taste auf.

Im folgenden Bereich befindet sich ein Intro, in dem sich automatisch Bilder und Texte abwechseln.



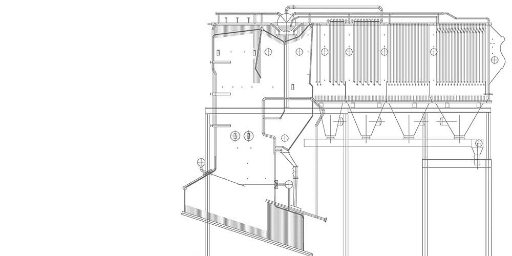
Ihr Spezialist für Dampfkesselbau, Wartung und Modernisierung




Die Dampfkesselbau W.A.M.S.E.R. GmbH ist Ihr zuverlässiger Partner für die Wartung, Instandhaltung und Modernisierung von Müllheizkraftwerken, Industriedampferzeugern und Abhitzekesseln. Mit jahrzehntelanger Erfahrung und technischem Know-how sorgen wir für die maximale Effizienz, Sicherheit und Langlebigkeit Ihrer Anlagen.

Dank unserer qualifizierten Fachkräfte, modernster Technik und einem hohen Qualitätsanspruch setzen wir Maßstäbe in der Branche. Vertrauen Sie auf unsere Kompetenz – für eine nachhaltige und wirtschaftliche Zukunft Ihrer Energie- und Industrieanlagen.

„Unsere Website ist barrierefrei nutzbar. Für Feedback schreiben Sie bitte an webmaster@aktiv-webstyle.de.“

📞 Kontaktieren Sie uns noch heute für eine unverbindliche Beratung!





Beratung bei Umbau- und Modernisierungsmaßnahmen
Präventivmaßnahmen zur Erhöhung der Betriebssicherheit
Wartung und Instandhaltung
Druckteil-Fertigung, Ersatzteilservice
Reinigungseinrichtungen
Schutzbeschichtungen (Cladding)
Service Dampflokomotiven